3D Model
Refurbishment of Pentridge Prison
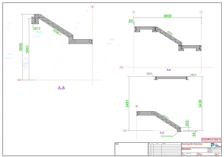
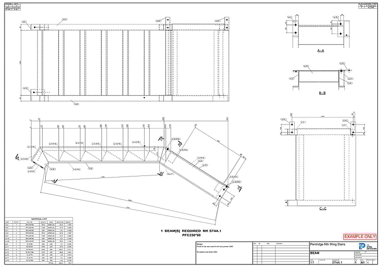
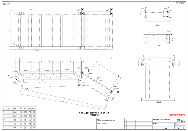
The old Pentridge prison is being refurbished and converted to a one of a kind cinema, housing and shopping precinct. Was great to be apart of this unique restoration and provide shop drawings for some new stairs.
Scope of Works
- IFC Model
- Marking Plans, elevations and isometric
- Assembly (Fabrication) Drawings
- Single Part Drawings (Shafts and Plates)
- Bolt List
- Material Lists (for ordering)
- Site Measure










