3D Model
19 Factories in Epping
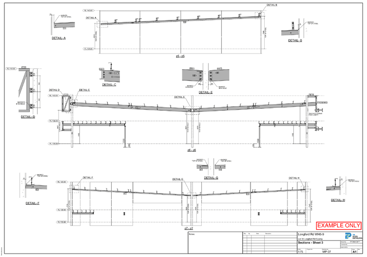
These drawings are from one stage of a 19 factory project we completed in 2022. We complete many factory jobs each year, from stand-alones to larger projects like this one.
Scope of Works
- IFC Model
- Marking Plans, elevations and isometric
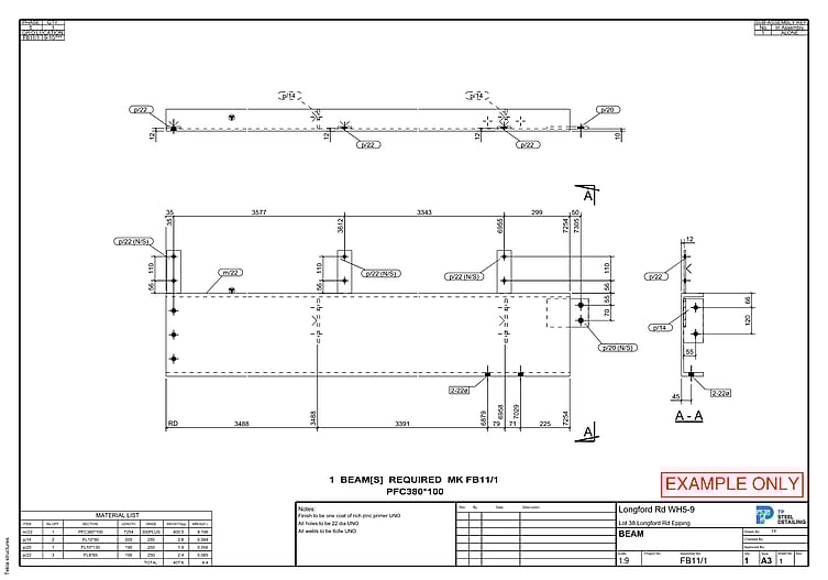
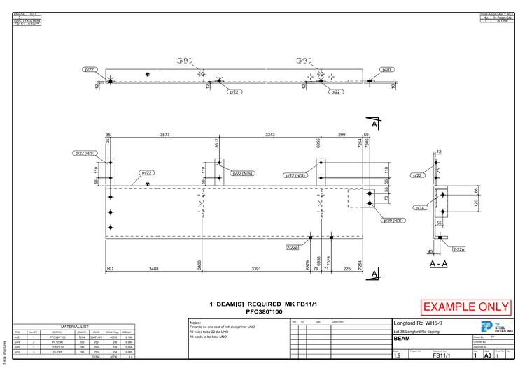
- Assembly (Fabrication) Drawings
- Single Part Drawings (Shafts and Plates)
- Bolt List
- Material Lists (for ordering)
- Site Measure












