3D Model
New sports pavillion at Heatherdale reserve
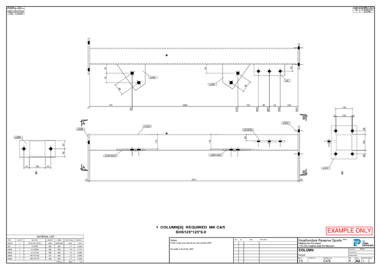
We provided a full set of erection and shop drawings for a sports pavillion facility at Heatherdale reserve in Mitcham. We were hired for this job due to our competance with complex 3D modelling which was particularly useful due to the challenging nature of all the angled trusses. Not many straight pieces of steel in this project, but we love a challenge and the results speak for themselves!
Scope of Works
- IFC Model
- Marking Plans, elevations and isometric
- Assembly (Fabrication) Drawings
- Single Part Drawings (Shafts and Plates)
- Bolt List
- Material Lists (for ordering)
- Site Measure














