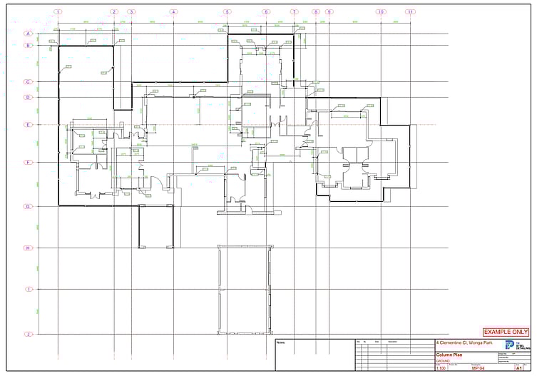
3D Model
Custom Home with Basement
A beautiful custom home built on a sloped block with a basement dug into a hill side, with high ceilings and cranked beams.
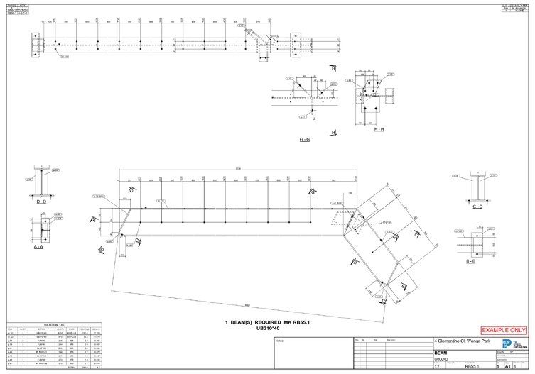
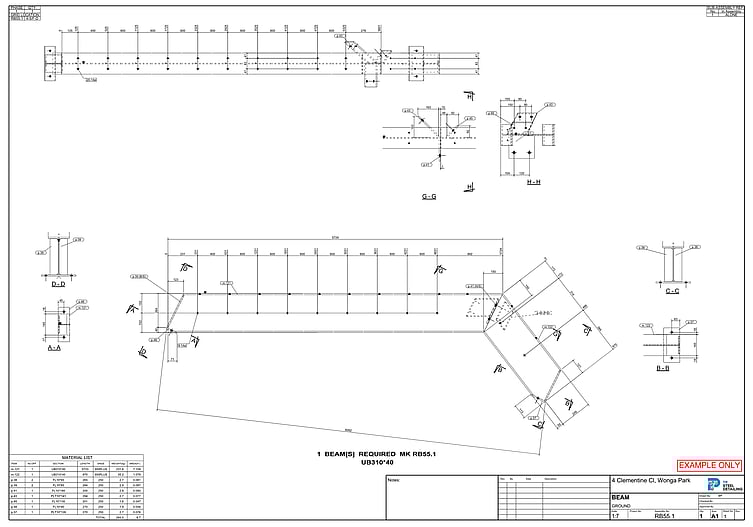
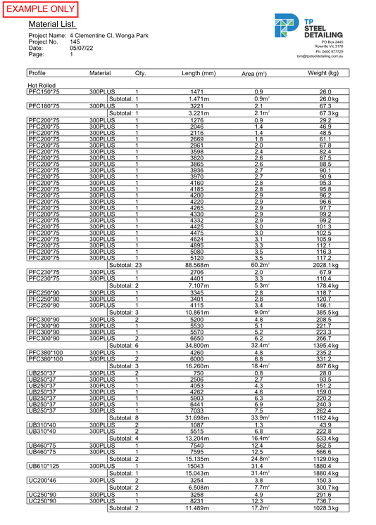
Scope of Works
- IFC Model
- Marking Plans, elevations and isometric
- Assembly (Fabrication) Drawings
- Single Part Drawings (Shafts and Plates)
- Bolt List
- Material Lists (for ordering)
- Site Measure










